免费观看在线A片绝顶高潮,又粗又黄又猛又爽大片免费,和老外3p爽粗大免费视频,97青娱乐国内视频

鴻泰客服?鴻泰客服:13839468258

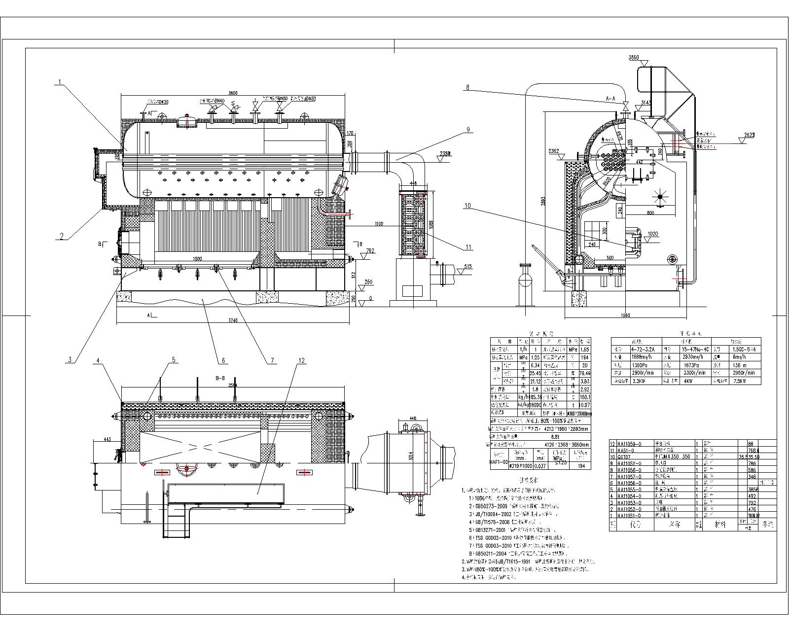
生物質蒸汽鍋爐圖紙(型號:DZH1-1.25-T)


生物質鍋爐主要分為生物質蒸汽、生物質導熱油爐等生物質顆粒燃料是利用秸軒、水稻稈,薪材、木屑花生殼瓜子殼、甜菜粕樹皮等所有廢棄的農作物,經粉碎一混合一擠壓-烘千等工藝.后制成顆粒狀燃料。

Copyright ? 2022 鴻泰鍋爐? 版權所有ICP備案編號:豫ICP備19020484號 XML地圖

鴻泰鍋爐專業(yè)制造:燃氣低氮鍋爐 燃油氣熱水鍋爐制造廠家